

MELTON 160
3 мес.
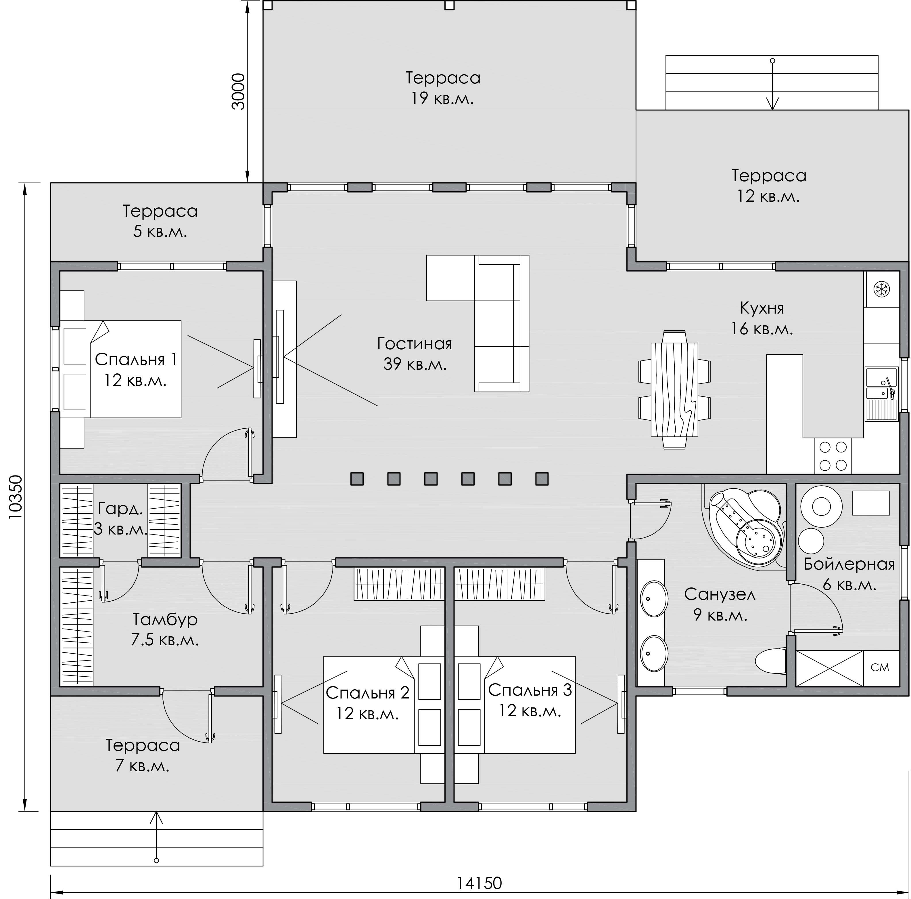
| Габариты | 14x10 м |
| Этажность | 1 этаж |
| Площадь | 160 м2 |
| Спальни | 3 |
| Санузлы | 1 |


MELTON 160
3 мес.
| Габариты | 14x10 м |
| Этажность | 1 этаж |
| Площадь | 160 м2 |
| Спальни | 3 |
| Санузлы | 1 |








Хотите что-то особенное? Мы адаптируем любой дом специально под вас!Мы не просто предлагаем готовые решения, а строим дома под ваши задачи и образ жизни. Заполните форму — и получите консультацию архитектора бесплатно.
Комплектация
Фундамент
Силовой каркас
Силовой каркас создается с использованием скандинавской каркасной технологии, основанной на проектной конструктивной документации.
Утепление
- KNAUF Insulation - материал из негорючей каменной ваты, представленный в виде плит. Эти плиты обеспечивают отличные теплоизоляционные и звукоизоляционные свойства, а также высокую пожарную безопасность
Отделка
- Вентиляционный зазор обрешетка 20х40мм.
- Наружная отделка Имитация бруса класса А-Б 20х180мм., окрашенная в заводских условиях, грунтовка+ покраска 2 слоя. Монтаж открытым способом на саморезы.
- Настил террасы Доска 45х145мм с заводской пропиткой террасным маслом. Монтаж открытым способом на саморезы.
- Торец кровли
- Свесы кровли Евровагонка класса А-Б 12.5мм окрашенная в заводских условиях.
- Декоративные элементы, окрашенные в заводских условиях, монтаж на финишные гвозди/саморезы:
- Обрамление окон: наличники 90мм, доборы доска 20х90мм;
- Углы дома доска 20х140мм.
- Ограждения террасы: доска 45х145 мм, брусок 50х50мм.
- Декоративный фасад: рейка 30х40мм.
Кровля
- Металлочерепица GrandLine 0.5, или аналоги, с полимерным покрытием Satin.
- Гидроизоляция кровли - диффузионная мембрана.
- Вентиляция подкровельного пространства с зазором 50 мм.
- Монтаж обрешетки 50х50мм и контробрешетки 20х90мм.
- Водосточная система ПВХ GrandLine или аналоги;
- Вентиляция - проходной изолированный вывод на кровлю. 3шт. (кухня, санузел, гостиная).
Окна и двери
Окна ПВХ VEКА 70.
- Двухкамерный стеклопакет;
- Поворотно откидной механизм, фурнитура Roto/GU;
- Пятикамерный профиль VEKA толщиной 70мм;
- Высококачественный уплотнитель.
Дверь на террасу/балкон ПВХ VEКА 70.
Входная и межкомнатные двери – отсутствуют.
Структура строительного процесса
- Посещение специалиста на вашем участке;
- Создание архитектурного и конструктивного проектов;
- Организация проживания бригады, включая бытовку и биотуалет;
- Доставка строительных материалов в пределах 100км от МКАД;
- Сопровождение строительного процесса, технический надзор;
- Персональный менеджер и индивидуальный чат в WhatsApp с регулярными фотоотчетами о ходе строительства;
- Предоставление гарантии 10 лет.
Обсуждаются индивидуально:
- Подготовка площадки для строительства
- Септик и скважина
- Дренаж и отмостка
- Инженерные коммуникации
- Внутренняя отделка
- Вывоз строительного мусора
Фундамент
Утепление
- KNAUF Insulation - материал из негорючей каменной ваты, представленный в виде плит. Эти плиты обеспечивают отличные теплоизоляционные и звукоизоляционные свойства, а также высокую пожарную безопасность
Кровля
- Металлочерепица GrandLine 0.5, или аналоги, с полимерным покрытием Satin.
- Гидроизоляция кровли - диффузионная мембрана.
- Вентиляция подкровельного пространства с зазором 50 мм.
- Монтаж обрешетки 50х50мм и контробрешетки 20х90мм.
- Водосточная система ПВХ GrandLine или аналоги;
- Вентиляция - проходной изолированный вывод на кровлю. 3шт. (кухня, санузел, гостиная).
Структура строительного процесса
- Посещение специалиста на вашем участке;
- Создание архитектурного и конструктивного проектов;
- Организация проживания бригады, включая бытовку и биотуалет;
- Доставка строительных материалов в пределах 100км от МКАД;
- Сопровождение строительного процесса, технический надзор;
- Персональный менеджер и индивидуальный чат в WhatsApp с регулярными фотоотчетами о ходе строительства;
- Предоставление гарантии 10 лет.
Силовой каркас
Силовой каркас создается с использованием скандинавской каркасной технологии, основанной на проектной конструктивной документации.
Отделка
- Вентиляционный зазор обрешетка 20х40мм.
- Наружная отделка Имитация бруса класса А-Б 20х180мм., окрашенная в заводских условиях, грунтовка+ покраска 2 слоя. Монтаж открытым способом на саморезы.
- Настил террасы Доска 45х145мм с заводской пропиткой террасным маслом. Монтаж открытым способом на саморезы.
- Торец кровли
- Свесы кровли Евровагонка класса А-Б 12.5мм окрашенная в заводских условиях.
- Декоративные элементы, окрашенные в заводских условиях, монтаж на финишные гвозди/саморезы:
- Обрамление окон: наличники 90мм, доборы доска 20х90мм;
- Углы дома доска 20х140мм.
- Ограждения террасы: доска 45х145 мм, брусок 50х50мм.
- Декоративный фасад: рейка 30х40мм.
Окна и двери
Окна ПВХ VEКА 70.
- Двухкамерный стеклопакет;
- Поворотно откидной механизм, фурнитура Roto/GU;
- Пятикамерный профиль VEKA толщиной 70мм;
- Высококачественный уплотнитель.
Дверь на террасу/балкон ПВХ VEКА 70.
Входная и межкомнатные двери – отсутствуют.
Обсуждаются индивидуально:
- Подготовка площадки для строительства
- Септик и скважина
- Дренаж и отмостка
- Инженерные коммуникации
- Внутренняя отделка
- Вывоз строительного мусора
Разработка индивидуального проекта
Хотите дом, который идеально подойдёт вам и вашей семье? Давайте создадим индивидуальный проект с нуля — с учётом ваших желаний, участка и образа жизни!
Оставьте свои контакты и мы свяжемся с вами
















